| ID # | 11673873 |
| Details | (DOM): 0 days |
| Broker Website | |
![]() |
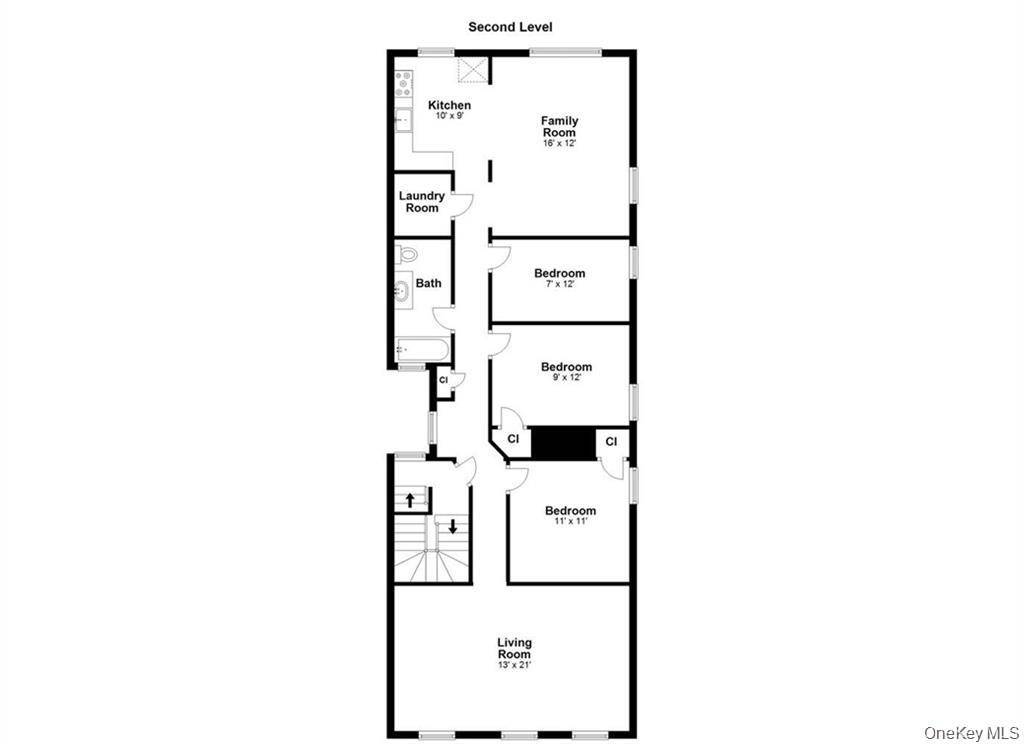
Huge three bedrooms apartment with separate dining room/family room and very large living room. Walk to all forms of transportation, shops, banks, restaurants, schools, and parks. Call today! Suitable for the large family.







