| ID # | 964210 |
| Construction Year | 1925 |
| Taxes (per year) | $11,835 |
| Fuel Type | Electric |
| Heat type | Electric |
| Bus | 4 min: B68 |
| 5 min: B103, BM3, BM4 | |
| 6 min: B35, B67, B69, BM1, BM2 | |
| 9 min: B8 | |
| 10 min: B16 | |
| Subway | 8 min: F |
| 10 min: B, Q | |
| LIRR | 2.9 miles: "Nostrand Avenue" |
| 3 miles: "Atlantic Terminal" | |
![]() |
Introducing the 339 Ocean Parkway, an exquisite development opportunity nestled
on a corner lot along the Nationally Historic
Ocean Parkway in Brooklyn, New York.
This thoughtfully designed concept envisions
17 residential units within a striking building that rises 74 feet, creating a harmonious blend of modern living and historical charm.
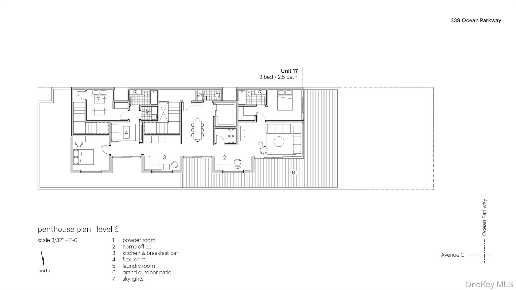
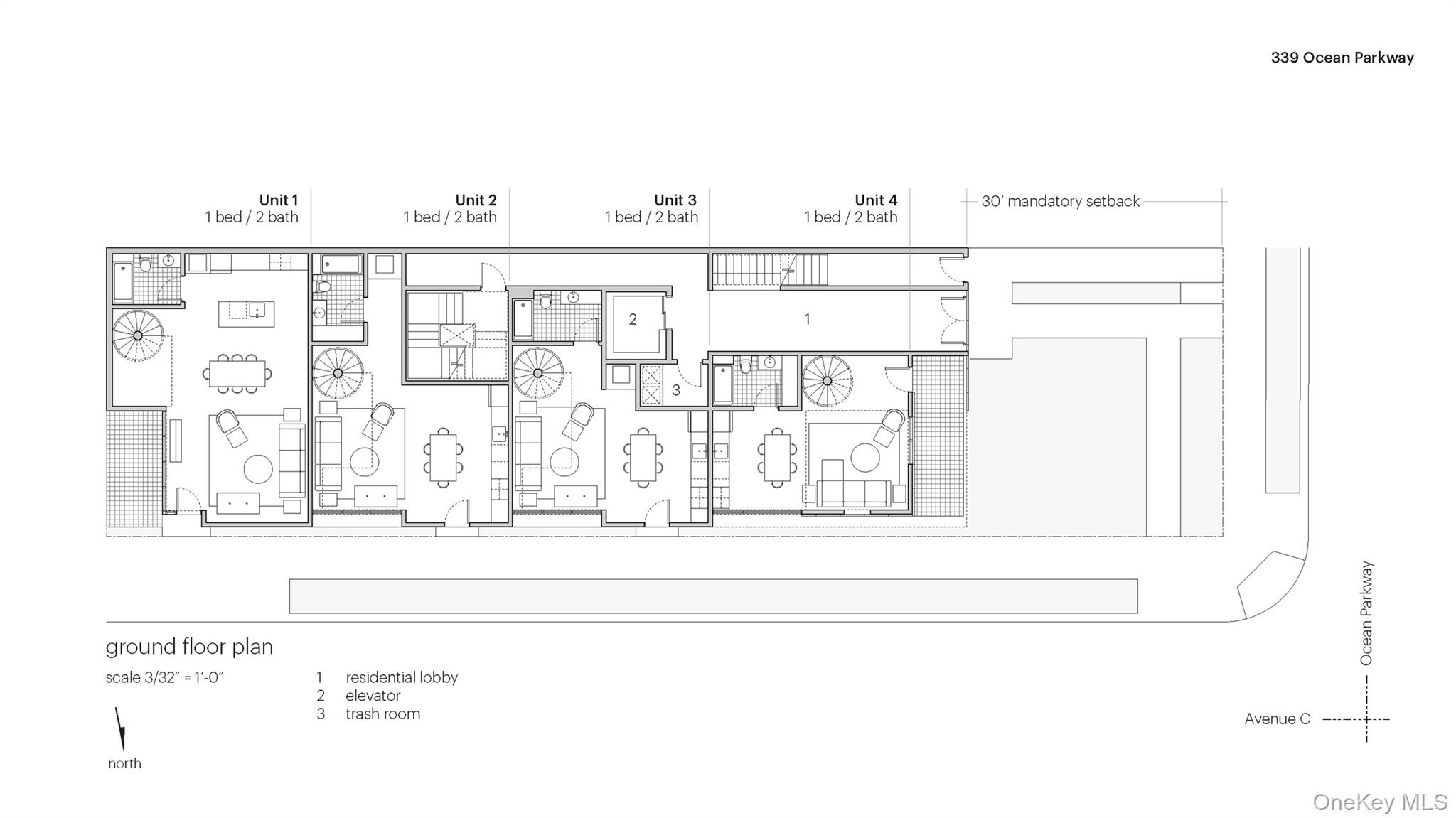
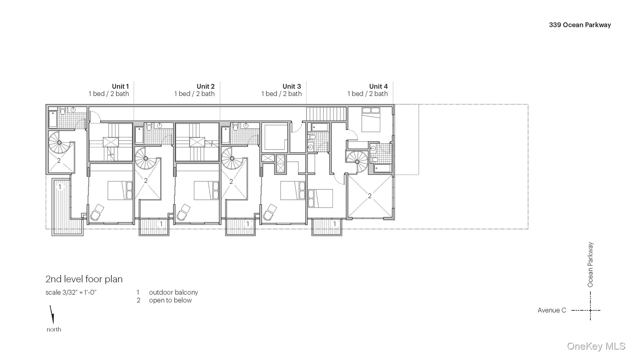
This property boasts 17,680 square feet of gross floor area, with 13,550 square feet of sellable space. The unit composition includes four one-bedroom double-height lofts featuring private outdoor balconies, perfect for enjoying serene views. Additionally, there are nine one-bedroom units, each thoughtfully designed with indoor garden rooms that bring nature into your living space. Three spacious two-bedroom units come equipped with two indoor garden rooms.
The highlight of this development is the full-floor grand penthouse unit, which epitomizes luxury living with expansive views and top-tier finishes.
The developer also has the option for below-grade storage and/or common amenities, providing flexibility to enhance the resident experience.
Located in a vibrant neighborhood, 339 Ocean Parkway is just a short distance from iconic attractions such as Prospect Park, the Brooklyn Botanic Garden, and the historic Prospect Park Zoo. Residents will enjoy easy access to an array
of dining, shopping, and entertainment options,
as well as convenient transportation links to Manhattan and beyond.
This is not just a property; it’s a chance to be part of Brooklyn’s rich tapestry. Discover the potential at 339 Ocean Parkway—where history meets modernity.
This information is not verified for authenticity or accuracy and is not guaranteed and may not reflect all real estate activity in the market. Listing courtesy of Howard Hanna NYC LLC © 2026







