| ID # | 951945 |
| Details | Lot Size: 18.8 acres (DOM): 21 days |
| Taxes (per year) | $5,412 |
![]() |
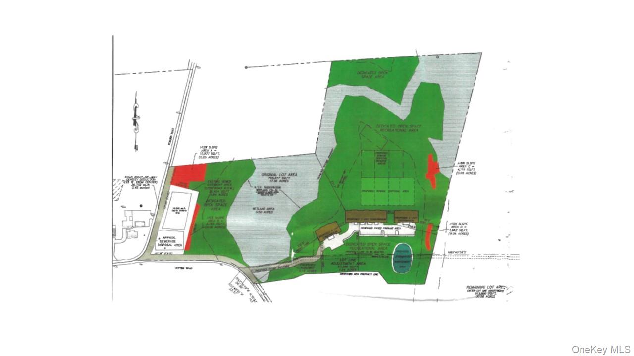
BUILDERS, DEVELOPERS, AND INVESTORS - TAKE NOTICE.
This 18.8 acre property offers a rare opportunity with significant groundwork already completed. The current owner previously secured permits and approved plans for a 15-Unit Townhouse development. Although the permits have since expired, the approved plans will be included with the sale. Substantial improvements have already been made, including two drilled wells and a constructed roadway, reducing both time and upfront development costs for the next owner. An adjacent parcel (MLS #952390) totaling 25.800 acres is also available for purchase, creating the potential for an expanded project or complementary development. This parcel features approximately 512 feet of road frontage and is zoned RR1.5, offering flexibility for residential development consistent with local zoning regulations.







