| ID # | 952663 |
| Details | Lot Size: 0.06 acres (DOM): 49 days |
| Taxes (per year) | $1,300 |
![]() |
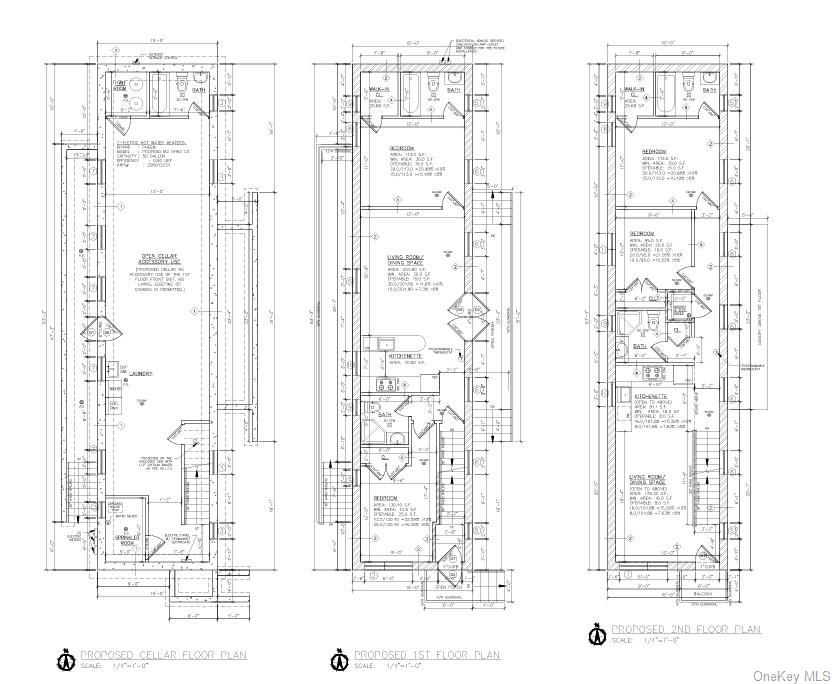
Rare opportunity to purchase a buildable lot with approved architectural plans in place. Skip months of planning and approvals and move directly toward construction. Plans are designed for a spacious 2-family property. This home offers 2 duplex units. with a total 4 bedrooms and 6 bathrooms plus an extra study room on the third floor. Total 3795 sq ft finished area residence. Excellent location and Perfect for builders or buyers seeking a calmer living area. Call today to schedule your private viewing.
This information is not verified for authenticity or accuracy and is not guaranteed and may not reflect all real estate activity in the market. Listing courtesy of Han Tang Realty Inc. © 2026







