COMM LEASE
Address: ‎1492 High Ridge Road #1
Zip Code: 06903
分享到
$975 rent
ID # 951999
English
Broker Contact
Are you the listing agent? Sign up to add your name and cell #
Berkshire Hathaway HS NY Prop Office: ‍914-779-1700

$975 rent - 1492 High Ridge Road #1, Stamford, NY 06903|ID # 951999

ID #‎ 951999
Construction Year1968
Taxes
(per year)
$60,909
Heat typeHot air
Air
Conditioning
Central Air
Are you the listing agent? Sign up to add your name/photo/cell to your flyers. helpdesk@Samaki.com
房屋英文概況 English Description

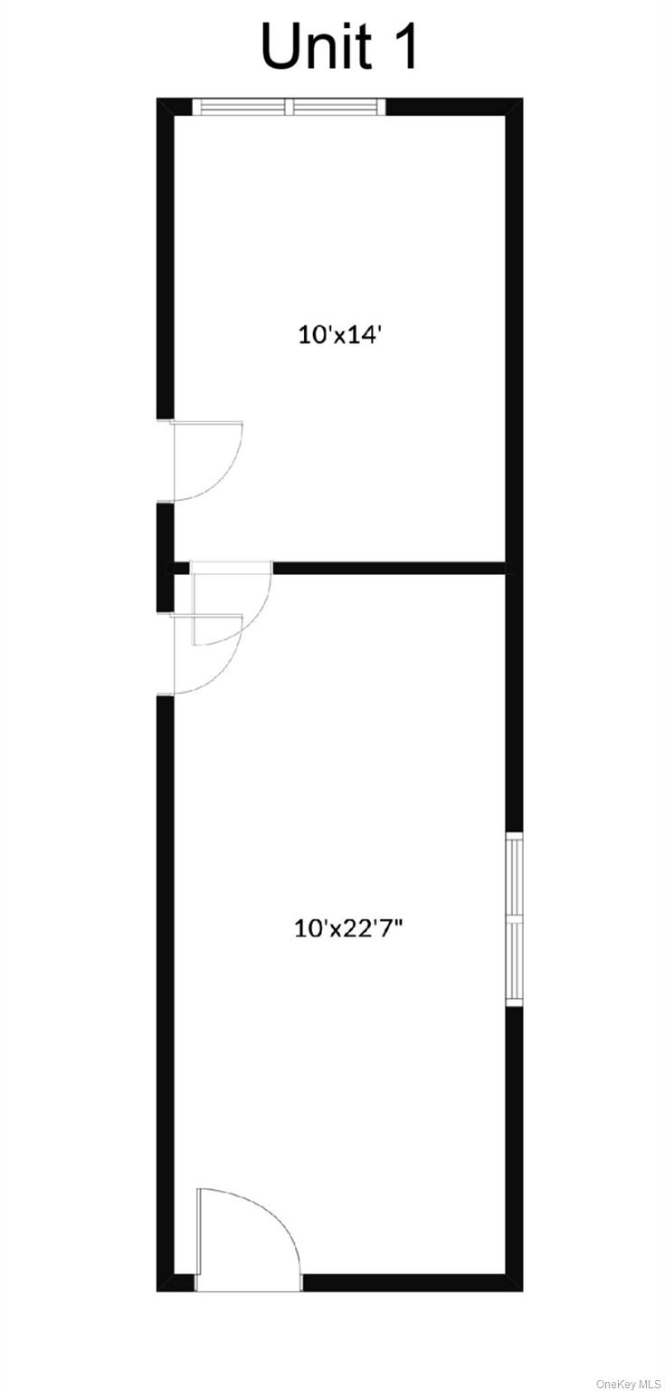
Well-located second floor office space available ( 2 separate rooms) at 1492 High Ridge Road, Stamford, CT, offering excellent access and convenience with immediate proximity to the Merritt Parkway. Ideal for professional, medical, wellness, or service-based users seeking a North Stamford/High Ridge corridor location. The space includes one assigned parking spot with additional parking in the rear-lot and a shared hallway bathroom. Upgrade your workspace with this well-located, professional office suite. Rent includes all utilities.

This information is not verified for authenticity or accuracy and is not guaranteed and may not reflect all real estate activity in the market. Listing courtesy of Berkshire Hathaway HS NY Prop © 2026

Courtesy of Berkshire Hathaway HS NY Prop

公司: ‍914-779-1700




分享 Share
$975 rent
COMM LEASE
ID # 951999
‎1492 High Ridge Road
Stamford, NY 06903


Listing Agent(s):‎
Are you the listing agent? Sign up to add your name and cell #‎
Office: ‍914-779-1700
请说您在SAMAKI.COM看此广告
请也给我ID # 951999