| ID # | RLS20066566 |
| Details | 2 bed, 1 bath, dishwasher, Interior: 925 ft2, 86m2, 4 Units in the building, Building has 4 floors (DOM): 5 days |
| Construction Year | 1920 |
| Maintenance Fees | $386 |
| Taxes (per year) | $7,152 |
| Bus | 3 min: B41, B69 |
| 5 min: B67 | |
| 10 min: B45 | |
| Subway | 5 min: 2, 3 |
| 7 min: B, Q | |
| LIRR | 0.8 miles: "Atlantic Terminal" |
| 1.3 miles: "Nostrand Avenue" | |
![]() |
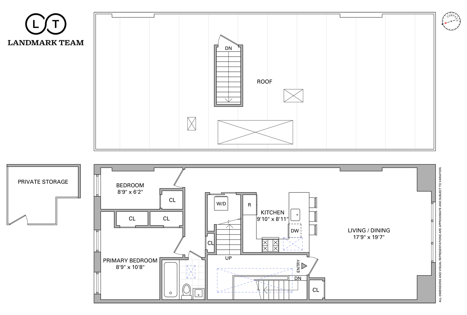
Park Slope 2BR/1BA condo with private deeded roof, deeded storage, A/C and W/D.
It's not a dream, it just feels that way. Set on one of Park Slope's prettiest park blocks, this dreamy 925SF 2BR/1BA penthouse condo with deeded roof space will take your breath away. Dappled sunlight streams into the living room through south-facing arched windows, lulling you into much-needed tranquility. The open kitchen and living space is perfection. The well-appointed kitchen has tasteful cabinetry, stainless steel appliances, stone counters and a generous breakfast bar, ideal for entertaining or quiet dinners away from the bustle of Brooklyn life. The large primary bedroom is set away from the main living area, a serene sanctuary with two large closets and two large windows. The second bedroom is charming, functioning well as an office, nursery or small bedroom. This special home has an in-unit washer/dryer, air conditioning, and gorgeous hardwood floors throughout.
The entire 1056 square foot roof is deeded, accessible by a "real" staircase, and features phenomenal Brooklyn and Manhattan views. This private outdoor space is larger than the apartment itself, offering myriad options (roof deck, sitting area, yoga under the sun). As if your cup wasn't already full, the unit comes with a large, deeded storage cage.
853 Carroll Street is a incomparably beautiful Romanesque Revival mansion set on one of the most desirable blocks in Park Slope. Designed by the legendary CPH Gilbert, this self-managed condo is impeccably maintained, as evidenced by the beautiful common areas, and boasts extremely low common charges. The property is a half-block from Prospect Park, two blocks from PS 321, convenient to the 2,3,B,Q,F,G trains, and the wonderful shopping, dining and amenities that make Park Slope Brooklyn's most alluring neighborhood.
This information is not verified for authenticity or accuracy and is not guaranteed and may not reflect all real estate activity in the market. ©2025 The Real Estate Board of New York, Inc., All rights reserved.






