| ID # | RLS20062356 |
| Details | 2 bed, 1 bath, Interior: 1000 ft2, 93m2, 8 Units in the building, Building has 4 floors (DOM): 21 days |
| Construction Year | 1929 |
| Bus | 1 min: B44, B45 |
| 3 min: B43, B44+ | |
| 5 min: B49 | |
| 6 min: B65 | |
| 10 min: B48 | |
| Subway | 4 min: 3 |
| 6 min: 2, 5 | |
| LIRR | 0.4 miles: "Nostrand Avenue" |
| 1.7 miles: "Atlantic Terminal" | |
![]() |
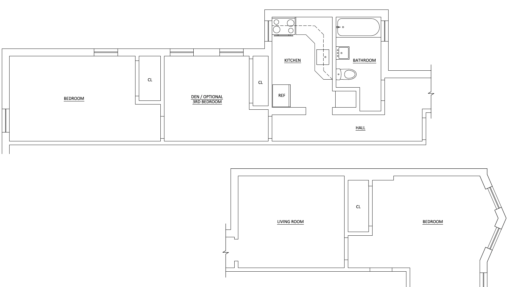
HUGE Crown Heights 2 King sized bedroom PLUS den/nursery AND living room. Great apartment in a very well maintained building. Bright and spacious layout features three exposures; updated kitchen with stainless steel appliances and built-in cupboard. Abundant closets. Separate Living area. LAUNDRY IN BUILDING. Close to transportation: A/C at Nostrand Avenue/Fulton Street as well as the 2/3/4/5 trains at Nostrand Avenue/Eastern Parkway, and LIRR at Nostrand Avenue Station.
Pets and guarantors allowed.
This information is not verified for authenticity or accuracy and is not guaranteed and may not reflect all real estate activity in the market. ©2025 The Real Estate Board of New York, Inc., All rights reserved.







