| ID # | 922780 |
| Details | 3 bed, 2 bath, 1 half bath, AC, Lot Size: 0.27 acres, Interior: 1714 ft2, 159m2 (DOM): 154 days |
| Construction Year | 2026 |
| Taxes (per year) | $8,100 |
| Heat type | Hot air |
| Air Conditioning | Central Air |
| Basement | Full basement |
![]() |
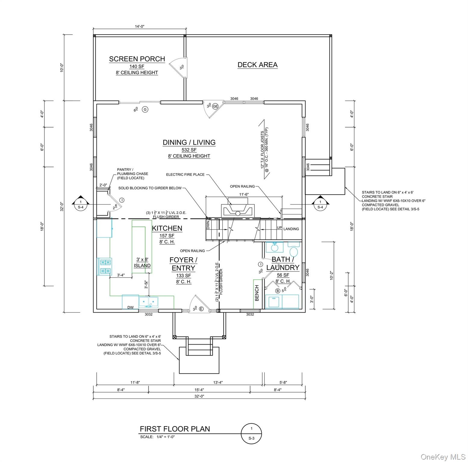
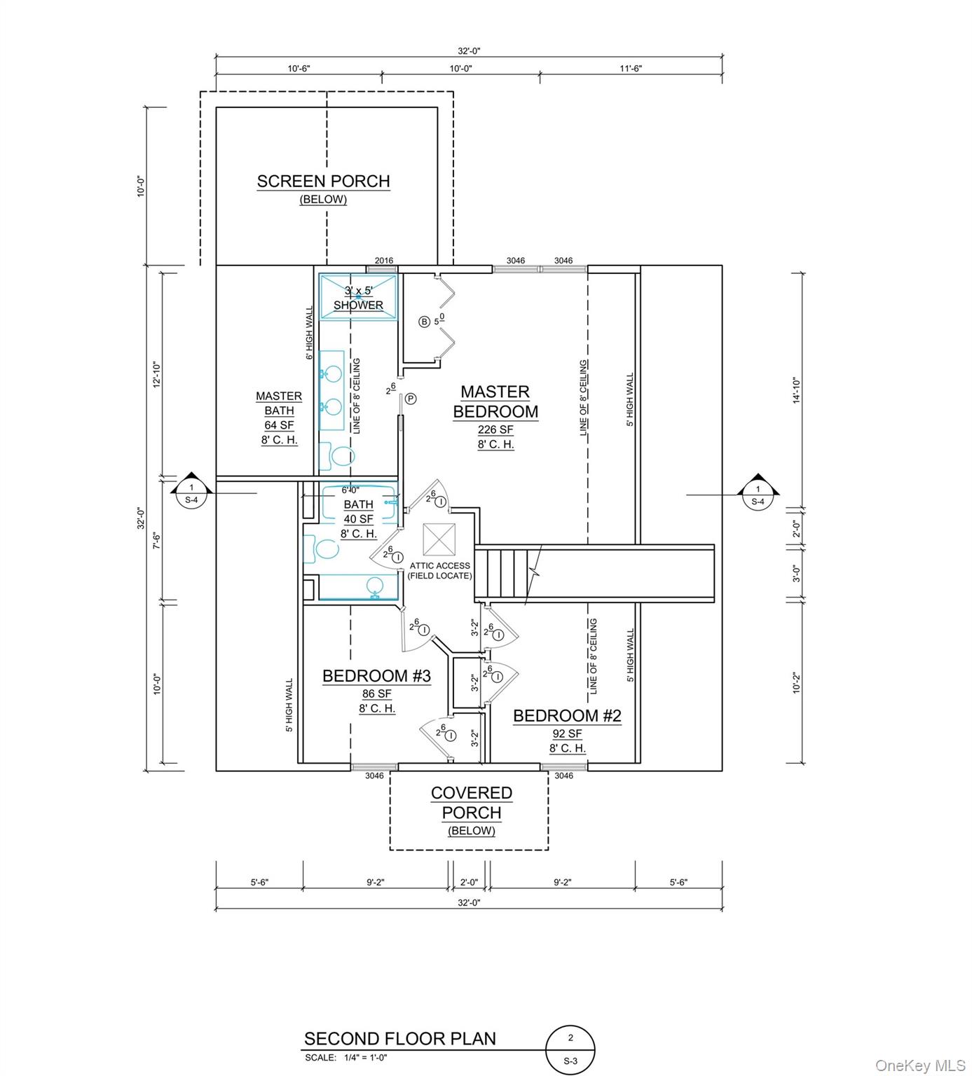
Charming new construction A-Frame with Modern Comforts. Welcome home to this stunning 3-bedroom, 2.5-bath A-frame residence, where cozy character meets modern convenience. Designed with an open-concept layout, the main level features a bright and airy living and dining room combination, highlighted by a warm fireplace that creates the perfect gathering space. The well-appointed kitchen with center island and pantry flows seamlessly into the living area, ideal for entertaining or family time. Enjoy the outdoors year-round on the wraparound deck or unwind in the peaceful screened-in porch. Upstairs, the spacious primary suite offers a private retreat complete with a luxurious bathroom featuring Marble counters and a double vanity. Additional bedrooms are comfortably carpeted, while all bathrooms showcase beautiful tile floors. With central air conditioning, open-cell spray foam insulation for energy efficiency, and thoughtful finishes throughout, this A-frame blends rustic charm with contemporary living—ready for you to move right in and enjoy. Minutes to downtown shops, dining, parks, and convenient public transportation for an easy commute.
This information is not verified for authenticity or accuracy and is not guaranteed and may not reflect all real estate activity in the market. Listing courtesy of Realty Promotions Inc © 2026







